欢迎来到荆州市瑞达机械制造有限公司!欢迎来到荆州市瑞达机械制造有限公司!

  • │ 设为主页 │ 收藏本站 │ 联系我们
  • 高温闸阀、蝶阀类 盲板阀、煤气切断阀、三杆阀类 风量调节阀类 通风蝶阀类 三通、双路阀、换向阀类 闸阀、扇形闸门、棒阀类 翻板阀、锁风阀、卸灰阀类 安全防爆阀类 管道伸缩器、止回阀类 溜槽、空提、输送设备类 除尘器类 回转切断阀 烟尘罐 气动装置
产品分类
  • 高温闸阀、蝶阀类
    高温闸阀
    水冷热风阀
    超高温闸阀
    XST系列 旋转高温三通阀
    K901P-S高温平衡器
    保能对夹高温蝶阀
    自动调节高温蝶阀
    衬里对夹高温蝶阀
    高温密闭器
  • 盲板阀、煤气切断阀、三杆阀类
    钟罩阀
    眼睛阀
    风道换向阀
    气体切断阀
    高性能密封蝶阀
    盲板阀
    三杆蝶阀
  • 风量调节阀类
    椭圆百叶阀
    百叶气流调节器
    风机调节阀
    手动风量调节阀
    电动圆形百叶阀
    百叶双路气流调节器
  • 通风蝶阀类
    推杆蝶阀
    自动调节蝶阀
    轻型蝶阀
    通风蝶阀
  • 三通、双路阀、换向阀类
    正四通
    双路输送切断阀
    输送分路阀
    双路输送阀
    筒式换向阀
    耐磨矿渣溜子
    侧三通
    三通溜子
  • 闸阀、扇形闸门、棒阀类
    物料调节闸门
    物料切断阀
    手动密闭闸门
    扇形闸门
    密闭式斜插板阀
    螺旋闸门
    滑动闸门
    腭式闸门
    插板阀
    棒条闸门
  • 翻板阀、锁风阀、卸灰阀类
    锥形锁风阀
    钟型卸灰阀
    叶轮给料机
    锁气排料阀
    流量控制阀
    高温翻板卸灰阀
    单、双层快速翻板阀
  • 安全防爆阀类
    泄爆阀
    防爆阀
    安全阀
  • 管道伸缩器、止回阀类
    波纹管
    超薄型蝶形止回阀
    风道止回阀
    钢制管道伸缩器
  • 溜槽、空提、输送设备类
    螺旋输送机
    空气提升器
    风动溜槽
  • 除尘器类
    单机布袋除尘器
  • 回转切断阀
    回转切断阀
  • 烟尘罐
    烟尘罐
  • 气动装置
    气动下料装置
当前位置:首页 >> 产品展示 >> 风量调节阀类
百叶双路气流调节器
 

 

   百叶式双路气流调节器用于建材、玻璃、矿山、电力、轻工、造纸等行业的风机进出口及通风管道,对管路中流量根据工况的不同需要进行调节。
 

性能参数:
 

公称压力

介质流速

泄漏率

适用温度

适用介质

Suitable medium

0.05MPa

≤30m/s

≤1.5%

≤300℃

空气、粉尘气体等

 
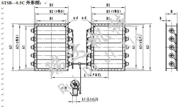
STSB---0.5C外形连接尺寸:
 
A1×B1 A2×B2 A3×A3 L1 L2 备注
320×180 355×215 380×240 150 240 口径及尺寸大小可根据客户需求定制
320×250 355×285 380×310 150 240
400×200 445×245 480×280 150 240
400×320 445×365 480×400 150 240
500×200 545×245 580×280 150 240
500×400 545×445 580×480 150 240
630×320 675×365 710×400 150 240
630×400 675×445 710×480 150 240
800×400 845×445 880×480 150 375
800×630 845×675 880×710 175 375
1000×500 1055×555 1100×600 175 375
1000×800 1055×855 1100×900 175 375
1250×630 1305×685 1350×730 175 375
1250×1000 1305×1055 1350×1100 175 375
1400×800 1455×855 1500×900 180 560
1400×1250 1455×1305 1500×1350 180 560
1600×1000 1655×1055 1700×1100 180 560
1600×1250 1655×1305 1700×1350 180 560
1800×1250 1865×1315 1920×1370 180 560
1800×1400 1865×1465 1920×1520 180 560
2000×1250 2065×1315 2120×1370 180 560
2000×1800 2065×1865 2120×1920 260 480
2500×1800 2565×1865 2620×1920 260 480
2500×2000 2565×2065 2620×2120 260 480
2800×2500 2870×2570 2930×2630 260 480
3200×2800 3270×2870 3330×2930 250 700
3600×3200 3670×3270 3730×3330 250 700
4000×3600 4070×3670 4130×3730 250 700
 

 

网站首页 │ 联系我们 │ 设为首页

版权所有 荆州市瑞达机械制造有限公司
联系人:段经理 联系电话:13986655633 地址:湖北省荆州开发区 鄂ICP备14013291号-1